Photography courtesy of Adam Rouse

639 Palmer Lane
Menlo Park

A modern tech haven on the edge of Atherton.

Experience the perfect fusion of smart technology, elegant design, and premier location in this beautifully upgraded 4-bedroom, 3-bath residence nestled on Palmer Lane, the most coveted street in the neighborhood, lined with prestigious Atherton estates.

Sunlight pours into the expansive common areas, where an airy dining space flows seamlessly into a spacious open concept kitchen and family room—ideal for both everyday living and effortless entertaining. A dedicated main-floor office and laundry room add functionality, while French doors lead to a charming covered patio and private backyard retreat complete with hot tub. This superb location is just minutes away from downtown Menlo Park, Redwood City, Holbrook-Palmer Park, Stanford, and top Silicon Valley tech campuses.

View Disclosures

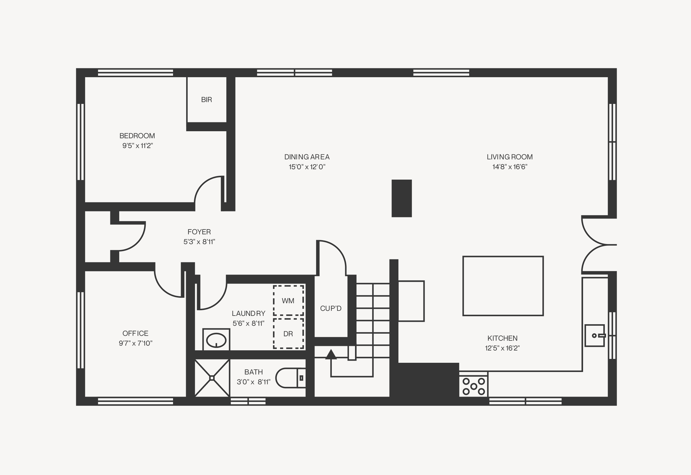
Floor plans

First floor

Second floor

  • Type

    Single Family

  • County

    San Mateo

  • Year built

    1924

  • HOA ($)

    N/A

  • Stories

    2

  • Garage

    2

  • Elementary

    1Garfield ES (K-8)

  • Distance (miles)

    0.8

  • High School

    2Menlo Atherton High

  • Distance (miles)

    1.7